Zwaanstraat 114 Cuijk
€ 299.500,- k.k.
- Woonoppervlakte 50 m2
- Bouwjaar 2016
- Aantal kamers 2
- Energielabel A
Omschrijving
Ben je op zoek naar een bijzondere woonplek? Dit sfeervolle appartement op de hoek van de begane grond biedt precies wat je zoekt: een warme, uitnodigende sfeer met volop privacy, midden in het bruisende hart van Cuijk. Het moderne en energiezuinige complex, gebouwd in 2016, verkeert bovendien in uitstekende staat.
De ligging is ideaal: aan de rand van het centrum, met vrij uitzicht en een overvloed aan natuurlijk licht dankzij de vele ramen in zowel de voor- als zijgevel. Op je eigen terras geniet je van de ochtendzon met een kop koffie of sluit je de dag af met een goed glas wijn terwijl je uitkijkt over de levendige straat.
Via de centrale entree met intercom kom je binnen in een rustig, verzorgd complex met slechts 15 appartementen. De kleinschalige opzet zorgt voor een prettige, gemoedelijke sfeer en een goed en beheersbare woongemeenschap.
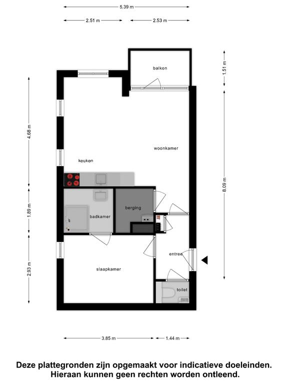
De woonkamer is ruim en licht, met dakramen die zorgen voor een open en luchtige uitstraling. Er is meer dan genoeg plek voor een royale zithoek en een gezellige eethoek!
De moderne open keuken is volledig uitgerust met een gaskookplaat, afzuigkap, vaatwasser en koelvriescombinatie; alles wat je nodig hebt om uitgebreid te koken of gewoon een snelle maaltijd te bereiden. Vanuit de woonkamer stap je direct het terras op, waar je heerlijk kunt ontspannen in de buitenlucht.
Tussen het woon- en slaapgedeelte vind je het toilet, stijlvol afgewerkt en voorzien van een fonteintje. De wandcloset zorgt bovendien voor extra schoonmaakgemak.
De ruime slaapkamer biedt voldoende plaats voor een comfortabel tweepersoonsbed en een grote kledingkast. Dankzij de slimme indeling met de badkamer tussen het woon- en slaapgedeelte is er extra privacy én geluidsdemping.
Achter het complex is een gemeenschappelijke berging aanwezig. Deze biedt voldoende ruimte om je fiets of scooter te stallen.
Wonen in het centrum van Cuijk betekent dat alles wat je nodig hebt binnen handbereik ligt: winkels, restaurants en recreatiemogelijkheden zijn op loopafstand. Dankzij de goede verbindingen met openbaar vervoer en de snelweg is dit de ideale uitvalsbasis voor werk én vrije tijd.
Voor een gemeente met een kleine 25.000 inwoners heeft Cuijk opvallend veel voorzieningen en faciliteiten voor inwoners, ondernemers en toeristen. De charme van zijn kleinschaligheid in combinatie met de veelzijdigheid aan mogelijkheden, maakt Cuijk tot een uitgelezen plek om te wonen, werken, ondernemen, winkelen en recreëren.
De ligging is bovendien bijzonder gunstig: direct aan de A73 met snelle verbindingen naar Nijmegen, Venlo en de Randstad. Vliegveld Weeze ligt op slechts 20 minuten rijden, Düsseldorf op een half uur en Eindhoven Airport op 55 kilometer afstand. Ook via de Maas is Cuijk uitstekend bereikbaar.
Dit appartement combineert modern wooncomfort met een ideale ligging. De actieve Vereniging van Eigenaren verzorgt het onderhoud, de verzekering en de schoonmaak, zodat jij zorgeloos kunt genieten van je nieuwe thuis. En met een maandelijkse bijdrage van slechts €125,- (conform begroting 2025) is het wonen hier ook nog eens betaalbaar.
Wil je wonen in het centrum van Cuijk, met comfort, licht en sfeer?
Laat je verrassen door dit prachtige appartement en ervaar zelf de charme van deze unieke plek!
Bijzonderheden:
– In het centrum;
– Ruime woonkamer;
– Open keuken;
– Dicht in de buurt van uitvalswegen;
– Voldoende privacy;
– Complex uit het bouwjaar 2008;
– Terras;
– Vrij uitzicht;
– Projectnotaris van toepassing;
– Het betreft een voormalige huurwoning, verkoper hanteert eigen artikelen in de
koopovereenkomst.
Kenmerken
Overdracht
- Vraagprijs
- € 299.500,- k.k.
- Status
- Verkocht onder voorbehoud
- Permanente bewoning
- ja
Bouw
- Bouwvorm
- Bestaande bouw
- Bouwjaar
- 2016
Oppervlakte & inhoud
- Woonoppervlakte
- 50 m2
- Overige inpandige ruimte
- 0
- Gebouw gebonden buitenruimte
- 6
- Externe bergruimte
- 0
- Inhoud
- 166 m3
Indeling
- Aantal kamers
- 2
- Aantal slaapkamers
- 1
- Aantal verdiepingen
- 1
- Voorzieningen wonen
- Mechanische ventilatie, TV kabel, Natuurlijke ventilatie
Energie
- Energielabel
- A
- Isolatievormen
- Muurisolatie, Vloerisolatie, HR-glas
- Verwarming
- C.V.-ketel
- Warm water
- C.V.-ketel
- CV ketel combiketel
- ja
- CV ketel bouwjaar
- 2016
- CV ketel eigendom
- Eigendom
Kadastrale gegevens
- Eigendomssituatie
- Volle eigendom
Buitenruimte
- Ligging
- In centrum, In woonwijk, Vrij uitzicht