Zwaanstraat 124 Cuijk
€ 296.000,- k.k.
- Woonoppervlakte 50 m2
- Bouwjaar 2016
- Aantal kamers 2
- Energielabel A
Omschrijving
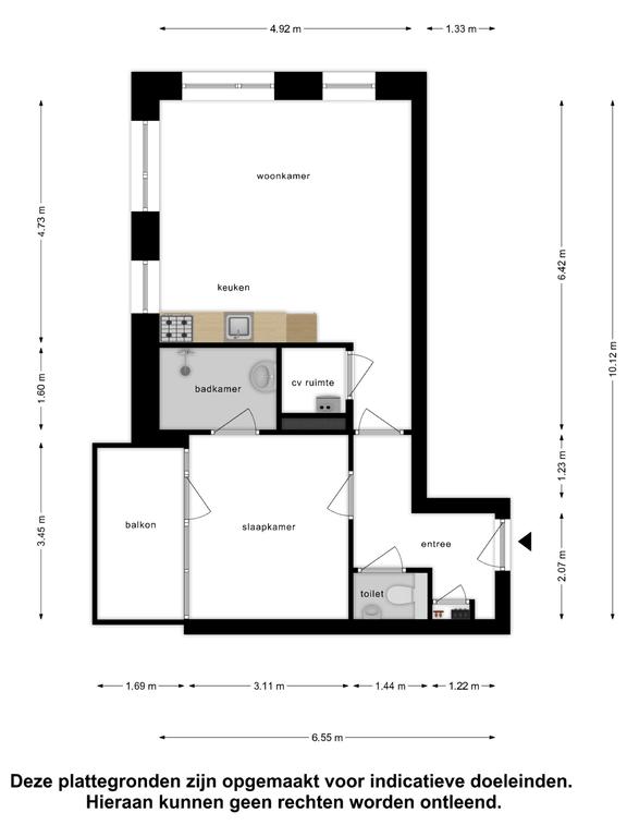
Gelegen in het hart van Cuijk, op de hoek van de eerste etage, bevindt zich dit sfeervolle en knusse appartement. Deze beschikt over een eigen balkon en profiteert van een mooie lichtinval. Het energiezuinige complex is in 2016 gebouwd en sindsdien uitstekend onderhouden.
Het complex ligt direct aan de rand van het centrum, schuin tegenover diverse winkelvoorzieningen. Dankzij de beperkte bebouwing in de omgeving geniet je hier van vrij uitzicht, veel privacy zonder inkijk en een fijne lichtinval.
Via de intercom kunnen je gasten aanbellen bij de centrale entree. Vanuit de hal bereik je met de trap eenvoudig je eigen etage. Het kleinschalige complex telt slechts 16 appartementen, wat zorgt voor een prettige, overzichtelijke en rustige woonomgeving.
Zodra je de woning binnenkomt, stap je de ruime ontvangsthal in waar voldoende plaats is voor je garderobe. Het toilet is apart van de woonkamer geplaatst, wat extra comfort en privacy biedt.
In het leefgedeelte vind je de keuken, uitgerust met een gaskookplaat, afzuigkap, spoelbak, vaatwasser en koelvriescombinatie. Dankzij de ruime opzet beschik je over volop werkruimte om met gemak een heerlijke maaltijd te bereiden.
In zowel de voor- als zijgevel zijn veel kozijnen geplaatst waardoor er een mooie lichtinval is en een ruimtelijk gevoel ontstaat. Er is meer dan genoeg plek om een comfortabele zithoek te creëren én een eethoek in te richten, waar je gezellig met vrienden kunt tafelen en chillen.
Het appartement is voorzien van vloerverwarming, waardoor je het op een energiezuinige manier behaaglijk warm houdt en het binnen direct prettig aanvoelt.
De slaapkamer is ruim opgezet en biedt volop plaats voor een comfortabel tweepersoonsbed en een grote kledingkast. Dankzij de balkondeur is de kamer heerlijk licht en goed te ventileren, en vanaf hier stap je zo het balkon op.
Vanaf je eigen balkon heb je de hele dag door een vrij uitzicht over de straat en kun je van links naar rechts alles goed overzien. Het is de perfecte plek om ’s ochtends te genieten van een ontbijt in de frisse lucht, overdag te borrelen met familie, of ’s avonds ontspannen van een wijntje te genieten voordat je meteen je bed induikt.
Ben je nog op zoek naar een gezellige plek? Leg wat mooie kussens op de brede vensterbanken en geniet vanaf daar heerlijk van een goed boek.
Tussen het woonvertrek en de slaapkamer liggen de voorzieningen als badkamer en techniekruimte. Deze extra geluidsbuffer zorgt ervoor dat je nog even kan doorslapen terwijl je partner thuis al aan het werk is.
De badkamer is keurig verzorgd. Er is voldoende ruimte om je na een frisse douche af te drogen.
Achter het complex is een gemeenschappelijke berging aanwezig. Deze biedt voldoende ruimte om je fiets of scooter droog te stallen.
Als je een appartement koopt, dan koop je een appartementsrecht. Je wordt exclusief eigenaar van je eigen appartement, je bent gezamenlijk eigenaar van het gebouw en de algemene ruimtes. Je bent dan een van de leden van de Vereniging van Eigenaren. Je betaalt samen de kosten voor de verzekering, schoonmaak en onderhoud van het complex. De vereniging wordt bestuurd door de Vereniging van Eigenaren en het bestuur zorgt ervoor dat de door jullie gemaakte afspraken worden uitgevoerd.
Het maandelijkse voorschot van de VvE voor het appartement bedraagt circa € 125,- (conform begroting 2025).
Cuijk
Dit appartement bevindt zich in het hart van Cuijk, waardoor je profiteert van een prachtige omgeving met winkels, restaurants, en recreatiemogelijkheden op loopafstand. Met makkelijk toegang tot het openbaar vervoer en de snelweg, is dit de ideale uitvalsbasis voor werk en vrije tijd.
Voor een gemeente met een kleine 25.000 inwoners heeft Cuijk opvallend veel voorzieningen en faciliteiten voor inwoners, ondernemers en toeristen. De charme van zijn kleinschaligheid in combinatie met de veelzijdigheid aan mogelijkheden, maakt Cuijk tot een uitgelezen plek om te wonen, werken, ondernemen, winkelen en recreëren.
Bereikbaarheid
Tussen de autosnelweg, rivier en spoorlijn, ligt Cuijk, met recht uniek te noemen. Pal aan de rijksweg A73/E31, zijn er snelle directe verbindingen met Nijmegen en Venlo en richting Randstad. Twintig minuten verderop ligt net over de grens airport Weeze, een half uurtje verder ligt de luchthaven van Düsseldorf. Binnen 55 kilometer kom je aan bij Vliegveld Eindhoven en via de drukbevaren Maas is Cuijk makkelijk te bereiken.
Let op: De foto’s zijn grotendeels van het appartement op de tweede verdieping. Beide appartementen zijn nagenoeg identiek!
Bijzonderheden:
– In het centrum;
– Ruime, lichte woonkamer;
– Open keuken;
– Dicht in de buurt van uitvalswegen;
– Voldoende privacy;
– Complex uit het bouwjaar 2016;
– Balkon;
– Vrij uitzicht.
Kenmerken
Overdracht
- Vraagprijs
- € 296.000,- k.k.
- Status
- Verkocht onder voorbehoud
- Permanente bewoning
- ja
Bouw
- Bouwvorm
- Bestaande bouw
- Bouwjaar
- 2016
Oppervlakte & inhoud
- Woonoppervlakte
- 50 m2
- Overige inpandige ruimte
- 0
- Gebouw gebonden buitenruimte
- 6
- Externe bergruimte
- 0
- Inhoud
- 166 m3
Indeling
- Aantal kamers
- 2
- Aantal slaapkamers
- 1
- Aantal verdiepingen
- 1
- Voorzieningen wonen
- Mechanische ventilatie, TV kabel, Natuurlijke ventilatie
Energie
- Energielabel
- A
- Isolatievormen
- Muurisolatie, Vloerisolatie, HR-glas
- Verwarming
- C.V.-ketel
- Warm water
- C.V.-ketel
- CV ketel combiketel
- ja
- CV ketel bouwjaar
- 2016
- CV ketel eigendom
- Eigendom
Kadastrale gegevens
- Eigendomssituatie
- Volle eigendom
Buitenruimte
- Ligging
- In centrum, In woonwijk, Vrij uitzicht