Molenveldlaan 218 Nijmegen
- € 538.500,- k.k.
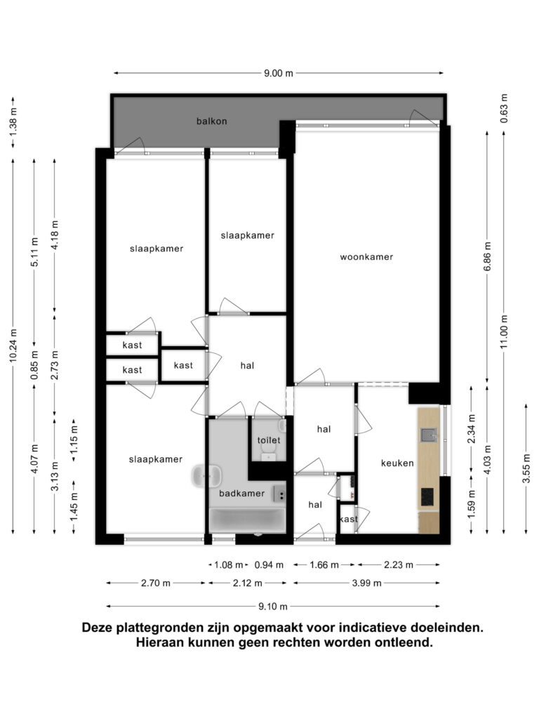
- 96 m2
- 3
€ 309.000,- k.k.
Dit ruime (96m2!) en lichte 4-kamer appartement, bevindt zich in een rustige wijk van het stadsdeel Dukenburg. De wijk is ruim opgezet en in de buurt is er veel groen en natuur te vinden. Je kan er voor je dagelijkse boodschappen makkelijk terecht in het buurtwinkelcentrum Meijhorst. Wil je uitgebreid shoppen, dan kan je in het grote winkelcentrum van Dukenburg terecht. Vanuit het appartement kan je heerlijk even naar buiten om een wandeling door het park of langs het Maas-Waalkanaal te maken.
Via de ruime en nette centrale hal kom je gemakkelijk met de trap of lift bij jouw nieuwe woning. Dankzij de intercom verwelkom je eenvoudig je gasten. Het appartement ligt op de vierde verdieping en biedt daardoor een mooi uitzicht over de omgeving. Alles wat je nodig hebt: winkels, openbaar vervoer en recreatie, is in de buurt.
Bij binnenkomst merk je direct hoe prettig de ruimte aanvoelt. De garderobe biedt genoeg plaats voor al je jassen en schoenen, en het voorportaal zorgt ervoor dat de warmte binnen blijft.
De ruime woonkamer met een grote glaspartij zit vol natuurlijk licht, wat de sfeer lekker luchtig en gezellig maakt. Of je nu een grote loungebank wilt neerzetten of een knus hoekje voor thuiswerken wilt creëren, de mogelijkheden zijn eindeloos. In de zomer kun je heerlijk buiten zitten op het balkon.
De moderne keuken grenst aan de woonkamer en bevindt zich aan de voorzijde van de woning. Deze is prima vanuit de hal bereikbaar, zodat je je tassen met boodschappen eenvoudig neer kan zetten.
De keuken is voorzien van alle nodige keukenapparatuur die het koken aangenaam maken. Door het grote raam valt veel licht in de keuken en dat is prettig tijdens het koken. Met al deze voorzieningen, genoeg bladruimte en de vele onderkasten met laden wordt koken meteen een stuk leuker!
Met drie ruime slaapkamers biedt dit appartement volop mogelijkheden. De ouderslaapkamer is royaal genoeg voor een grote kledingkast of extra werkplek, en de andere slaapkamers zijn eveneens royaal opgezet. Dankzij de ingebouwde kasten hoef je geen extra meubels aan te schaffen. Ook is het balkon bereikbaar via een van de slaapkamers.
De badkamer is een fijne plek om te ontspannen, met een ligbad, wastafel en ruimte voor je wasmachine. Het raampje boven de douche kan je openzetten voor de ventilatie en er valt daglicht naar binnen. Naast de badkamer bevindt zich een apart toilet met een fonteintje.
Het gebouw biedt daarnaast een handige inpandige berging op de begane grond. Perfect voor het opbergen van seizoensgebonden spullen, fietsen of gereedschap. Ook binnen het appartement vind je volop opbergruimte, met vier ingebouwde kasten is er voldoende bergruimte voor je proviand, huishoudelijke- en overige spullen.
Er is ontzettend veel te zien in de buurt van het appartement. Zo liggen er meerdere winkelcentra in de buurt, waaronder winkelcentrum Dukenburg. De Jumbo ligt om de hoek, op loopafstand. Je kan ook wandelen of fietsen langs de Staddijk. In de zomer kan je waterskiën of lekker liggen aan het water in recreatiepark “De Berendonck”, welke op een afstand van ca. 10 autominuten ligt. Pal naast het gebouw is er een park met een pad om een mooie vijver aangelegd. Hier kan je een frisse neus halen of van daaruit wandelen naar het Maas-Waalkanaal.
Fitnessen kan bij HARA FIT & FUN of je kan bijvoorbeeld hockeyen bij HCQZ. Aan de andere kant van het Maas-Waalkanaal vind je kanovereniging De Batavier. Voor jongere kinderen is de Nutsschool op loopafstand. De jeugd kan fietsen naar het Kandinsky College of het Mondial College.
Nijmegen is een leuke, bruisende stad gelegen aan de Waal. De combinatie van de historie van Nijmegen samen met de gezellige inwoners zorgt voor unieke sfeer die je erg thuis laat voelen. De stad beschikt daarnaast over het hoogstaande Radboud ziekenhuis en de Radboud Universiteit, beiden vernoemd naar de bisschop van Utrecht. Al met al is Nijmegen een heerlijke stad waar je je zeker thuis voelt! Je bent met het openbaar vervoer of met de fiets snel in het centrum.
Als je een appartement koopt, dan koop je een appartementsrecht. Je wordt exclusief eigenaar van je eigen appartement, je bent gezamenlijk eigenaar van het gebouw en de algemene ruimtes. Je bent dan een van de leden van de Vereniging van Eigenaren. Je betaalt samen de kosten voor de verzekering, schoonmaak en onderhoud van het complex. De vereniging wordt bestuurd door de Vereniging van Eigenaren en het bestuur zorgt ervoor dat de door jullie gemaakte afspraken worden uitgevoerd.
Het maandelijkse voorschot van de VvE voor de woning inclusief berging is € 174,54 per maand (conform begroting 2025).
Nieuwsgierig geworden naar hoe je jouw woning wilt inrichten en welke mogelijkheden er zijn? Bekijk dan snel de gemaakte 3D-ontwerpen en creëer je eigen huis waarin je je helemaal thuis voelt!
Bijzonderheden:
– Ruime, lichte woonkamer;
– Veel groen in de omgeving;
– Veel provisie- en bergruimte;
– Ruim balkon met vrij uitzicht;
– Winkelcentra in de buurt;
– Tochtportaal;
– Open keuken met inbouwapparatuur;
– Toilet met fonteintje;
– Projectnotaris van toepassing (Dirkzwager Notarissen te Nijmegen);
– Verkoper hanteert eigen clausules in de koopovereenkomst.
– De V.v.E. is een MJOP aan het opstellen en zal waarschijnlijk daarna de begroting en servicekosten op basis van de MJOP berekenen.