Zuster Theodardahof 32 Uden
- € 1.790,- p/m
- 109 m2
- 4
€ 1.445,- p/m
Beschikbaar per 01 januari 2026!
*Ruime, duurzame eengezinswoning*
De woning is gelegen in Uden-Oost. Uden ligt in de driehoek Nijmegen/Arnhem – ’s-Hertogenbosch – Eindhoven/Helmond. Met de auto ben je dus zo in een van deze grotere steden. Ideale ligging dus!
De woning is in 2024 volledig verduurzaamd! Vanwege de verbeterde isolatie en zonnepanelen geniet u van een fijner woonklimaat en lagere woonlasten. Energielabel A++!
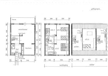
Begane grond: Hal, meterkast, toilet, woonkamer met open keuken, toegang tot de tuin, berging.
Eerste etage: overloop, 3 slaapkamers, badkamer met ligbad, douche, wastafel en toilet.
Zolder: overloop, wasmachineaansluiting op de voorzolder, 4e slaapkamer.
*De foto’s zijn van een soortgelijke woning.
Huurprijs: € 1.445,- p.m.
Waarborgsom: maximaal twee maanden kale huur.
De woning is per 1 januari 2026 beschikbaar. De minimale huurperiode is 12 maanden.
Interesse in deze woning?
Schrijft u zich kosteloos en vrijblijvend in op onze website NMGwonen.nl/huur. Zoek vervolgens de woning op en klik in het paarse vlak op de knop [INLOGGEN]: u geeft hiermee aan dat u interesse hebt in de woning.
Om in aanmerking te komen voor deze woning dient het bruto maandinkomen minimaal 3,5x de huurprijs per maand te bedragen. Het inkomen van een eventuele partner mag volledig meegerekend worden. Zelfstandigen dienen minimaal 2 jaarcijfers te kunnen aanleveren. Er zal een inkomenstoets plaatsvinden. Tevens voeren wij een creditcheck uit. Voor alle toewijzingscriteria verwijzen wij u naar onze website.
Indien u zich inschrijft via onze website NMGwonen, zullen wij u op basis van de verstrekte informatie automatisch per e-mail informeren over de woningen die beschikbaar komen en voldoen aan uw woonwensen.
Alle informatie is met de grootst mogelijke zorg samengesteld. Helaas kunnen wij niet altijd voorkomen dat de informatie enigszins afwijkt van de werkelijkheid. In sommige gevallen worden foto’s gebruikt van een soortgelijke woning of appartement en dienen als impressie. Aan de teksten, plattegronden, foto’s en maatvoeringen kunnen geen rechten worden ontleend.
Mogen wij jouw woning verkopen?
Bekijk onze aanpak om jouw
woning succesvol te verkopen!