Groningensingel 727 Arnhem
- € 235,000 kk
- 60 m2
- 2
€ 615.000,- k.k.
Ben je op zoek naar een woning in een gezellige buurt met veel voorzieningen? Deze twee-onder-een-kapwoning, gelegen in de wijk ‘De Zagerij’, in het geliefde dorp Elden, bied je die mogelijkheid. Met supermarkten, scholen en openbaar vervoer op korte afstand, geniet je van optimaal gemak. Daarnaast is het centrum van Arnhem eenvoudig te bereiken, zodat je kunt profiteren van alles wat de stad te bieden heeft.
Eenmaal in de straat ervaar je direct de rust. Er komt vrijwel alleen bestemmingsverkeer, wat zorgt voor een veilige en prettige woonomgeving, ideaal voor gezinnen. Parkeren is eenvoudig op eigen terrein en in de directe omgeving is voldoende openbare parkeergelegenheid beschikbaar, bijvoorbeeld wanneer je gasten ontvangt.
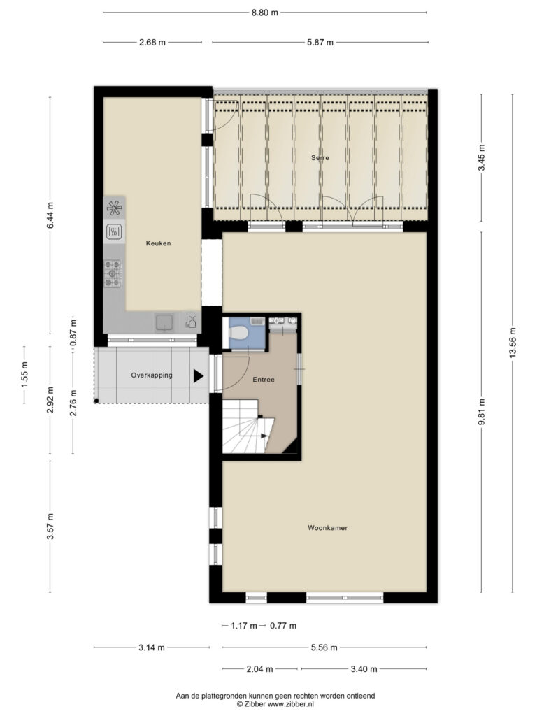
Je komt plezierig binnen in de ruime hal van de woning. Aan de binnenkant van de voordeur achter het rooster bevindt zich een draairaam voor extra ventilatie. Er is volop plek om jassen op te hangen en een dressoir te plaatsen. Het toilet is uitgevoerd als wandcloset en voorzien van een fonteintje. De hal beschikt bovendien over een moderne meterkast.
De royale woonkamer biedt volop indelingsmogelijkheden. Als ruimte je belangrijkste criterium is, zit je hier helemaal goed. Of je nu droomt van een aparte werkkamer met eigen toegangsdeur vanaf de straat, een speelgedeelte voor de kinderen of een slaapkamer met badkamer op de begane grond, er is hiervoor meer dan voldoende ruimte aanwezig.
Dankzij de kozijnen die tot aan de grond doorlopen, kijk je vanuit het zitgedeelte heerlijk naar buiten. Dit zorgt niet alleen voor een ruimtelijk gevoel, maar ook voor veel privacy en een prachtige lichtinval in de woning. De woonkamer biedt bovendien alle ruimte voor een royale loungehoek, ideaal om te ontspannen met familie en vrienden. Of het nu gaat om een gezellige avond, een goed gesprek of een borrel: de sfeer is warm en uitnodigend. Daarnaast is de begane grond voorzien van comfortabele vloerverwarming in combinatie met een pvc-vloer, wat bijdraagt aan extra wooncomfort.
Ook de luchtige ruimtes in het midden en aan de achterzijde van de woning bieden volop mogelijkheden. Zo kun je hier eenvoudig een tweede zithoek creëren, een speelhoek voor de kinderen, een comfortabele leesstoel of een werkplek inrichten.
Aan de achterkant bevindt zich de riante hoekkeuken, netjes geïntegreerd in de ruime aanbouw. Vanuit het raam in de keuken heb je goed zicht op de oprit, handig bijvoorbeeld als de kinderen buiten spelen. De keuken biedt volop werk- en opbergruimte en is perfect voor iedereen die graag kookt. Uitgerust met luxe apparaten, waaronder een 5-pits kookplaat met afzuigkap, een vries- en koelkast, een oven/magnetron en een vaatwasser. Dankzij de vele lades en kasten blijft alles netjes en overzichtelijk opgeborgen. Ook hier zorgen de grote ramen voor een lichte, uitnodigende sfeer.
Komt de hele familie samen voor ontbijt of diner? Aan de grote eettafel is er genoeg plek voor iedereen. Daarbij heb je een prachtig uitzicht op de achtertuin.
Er bestaat de mogelijkheid om een extra (slaap)kamer te realiseren door de keuken te verplaatsen naar het woonkamergedeelte. Hierdoor komt de huidige keukenruimte vrij, die zich uitstekend leent voor een alternatieve indeling en eenvoudig kan worden omgevormd tot extra kamer. Dit maakt de woning bijzonder flexibel en geschikt voor uiteenlopende woonwensen, zoals een werk-, hobby- of extra slaapkamer.
Je stapt eenvoudig de achtertuin in, via de deur bij de eetkamer of de grote dubbele openslaande deuren in de woonkamer. De onderhoudsvriendelijke tuin is royaal opgezet en biedt volop plek voor een grote loungeset of een tafel met stoelen. Dankzij de verschillende mogelijkheden voor zithoeken is de tuin bijzonder veelzijdig en helemaal naar eigen wens in te richten.
De serre is voorzien van een zonnedoek, verlichting en een terrasverwarmer. Zo kun je beschut genieten van het buitenleven, terwijl je direct vanuit de woning toegang hebt. Daarnaast is er een berging met voldoende ruimte voor tuingereedschap, seizoensspullen en je fietsen. Bovendien is er een handig achterom, waardoor je gemakkelijk je fietsen achter kunt neerzetten als je van werk of school komt.
Via de trap in de hal bereik je de eerste verdieping, met een ruime overloop die veel privacy biedt. Op deze verdieping bevinden zich drie volwaardige slaapkamers, allemaal voorzien van een fraaie gietvloer, en groot genoeg voor een royaal bed, met daarnaast ruimte voor een kast of een bureau. Dankzij de dakkapellen is er extra leefruimte gecreëerd en valt er nog meer natuurlijk licht binnen. Bovendien zijn deze voorzien van praktische rolluiken.
De badkamer is royaal opgezet en voorzien van een inloopdouche. Daarnaast is er een tweede wandcloset, designradiator en een wastafelmeubel met wasbak. Het kleine raam zorgt voor voldoende ventilatie. Dankzij de lichte kleuren en hoogwaardige materialen straalt de badkamer rust en stijl uit.
Als laatste is er een praktische wasruimte met aansluitingen voor zowel wasmachine als droger. Hier bevindt zich tevens de CV-opstelling met een Intergas combiketel.
Op de tweede verdieping bevindt zich een zolderberging, die via een vlizotrap eenvoudig bereikbaar is. Deze praktische ruimte biedt volop mogelijkheden voor opslag, waardoor de overige verdiepingen netjes en opgeruimd blijven en je woonruimtes optimaal kunt benutten.
Instapklaar wonen: daar zullen velen jaloers op zijn! De woning verkeert in uitstekende staat, waardoor je er vrijwel direct in kunt trekken. Natuurlijk kun je met eigen kleuren en accenten jouw persoonlijke stijl toevoegen, maar de basis is al helemaal op orde. Alles oogt fris, modern en goed onderhouden. De woning is voorzien van twee airco’s, één in de woonkamer en één op de overloop van de eerste verdieping. Daarnaast is de woning voorzien van 12 zonnepanelen, wat bijdraagt aan een energiezuinig en duurzaam wooncomfort.
In de directe omgeving van Zagerij 18 vind je alle dagelijkse voorzieningen, zoals supermarkten, scholen en sportfaciliteiten. Ook zijn er mooie wandel- en fietsroutes in het groene Elden. Deze ruime eengezinswoning ligt in de kleinschalige en geliefde wijk “De Zagerij”, met slechts achttien woningen en een prettige, sociale sfeer. Bijzonder is het uitzicht aan de oostzijde op “De Hoop”: een authentieke, nog werkende belt-korenmolen uit 1846, waar je op zaterdag versgemalen meel kunt kopen.
Wonen in Elden betekent genieten van het beste van twee werelden. Je ervaart hier de gemoedelijke, dorpse sfeer terwijl alle dagelijkse voorzieningen binnen handbereik zijn. Tegelijkertijd ligt het bruisende centrum van Arnhem op slechts 15 minuten fietsen, waardoor je eenvoudig profiteert van alles wat de stad te bieden heeft. Daarnaast is de ligging bijzonder gunstig ten opzichte van de uitvalswegen (A325/N325), waardoor steden als Nijmegen en Utrecht snel en goed bereikbaar zijn.
Maak snel een afspraak of breng een bezoek aan het open huis. Laat je verrassen door deze unieke woning en grijp je kans!
Waarom deze woning?
– Instapklaar;
– Veel indelingsmogelijkheden;
– Woning is goed geïsoleerd en energiezuinig;
– Geliefde en rustige locatie;
– 12 zonnepanelen;
– Airco in woonkamer en overloop op 1ste verdieping;
– Visgraat pvc-vloer begane grond;
– Begane grond voorzien van vloerverwarming;
– Wanden en plafonds afgewerkt met strak stucwerk;
– Serre met verlichting en elektrische zonwering;
– Diverse rolluiken en raamdecoraties;
– Woning voorzien van dakkapellen;
– Voldoende parkeergelegenheid;
– Dichtbij winkels, scholen, en bushaltes.
Wilt u deze duurzame en ruime gezinswoning zelf ervaren?
Maak een afspraak voor een bezichtiging en ontdek alle mogelijkheden die deze woning te bieden heeft! Heeft u vragen of wilt u meer informatie? Neem gerust contact met ons op!