Meester van Goerlestraat 6 's-Hertogenbosch
€ 595.000,- k.k.
- Living area 116 m2
- Plot 223 m2
- Construction year 1993
- Number of rooms 5
- Energy label a
Description
In de populaire wijk Maaspoort in ’s-Hertogenbosch staat deze sfeervolle geschakelde twee-onder-één-kapwoning, volledig instapklaar en afgewerkt met zeer luxe materialen. De wijk, gelegen ten noorden van de A59 en langs de rivier de Maas, kenmerkt zich door een gevarieerd straatbeeld met laag- en hoogbouw en verschillende architectuurstijlen. Hier woon je rustig te midden van het groen, terwijl de historische binnenstad van Den Bosch op korte fietsafstand ligt en de uitvalswegen A59 en A2 snelle verbindingen bieden naar andere steden.
De woning is professioneel, zeer luxe gerenoveerd en biedt een perfecte combinatie van ruimte, comfort en wellness, ideaal voor wie houdt van een stijlvolle, ontspannen woonomgeving.
De woning ligt in een rustige straat met een fietsroute die door Maaspoort loopt en veilig toegang biedt tot scholen, winkels en andere voorzieningen. In de nabijheid vind je allerlei speeltuinen voor de kinderen, de Noorderplas, de historische Eendenkooi, en de beschermde uiterwaarden langs de Maas bieden een rijke flora en fauna. Voor sport en recreatie is Maaspoort voorzien van sporthal Maaspoort Sports & Events, waardoor het een ideale plek is waar rust, natuur en stedelijk gemak samenkomen.
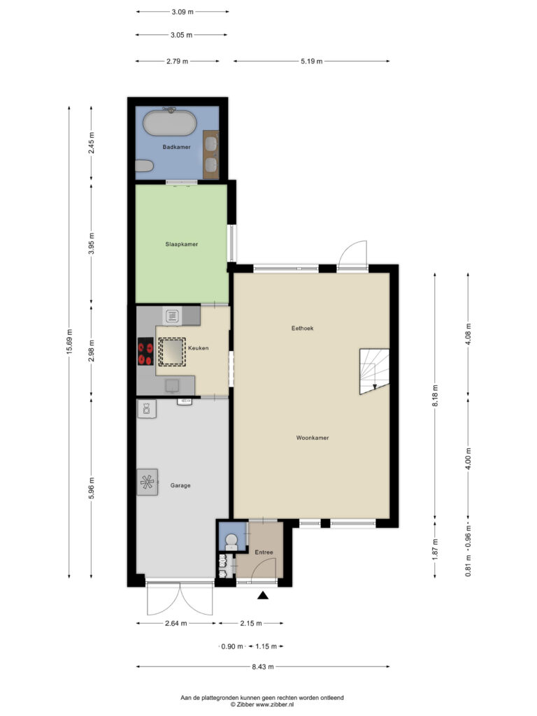
Eenmaal bij de woning, is er voor de deur eenvoudig ruimte voor twee auto’s, inclusief een elektrische laadvoorziening, waardoor zowel parkeren als opladen van een elektrische auto probleemloos is. Via de voordeur stap je direct de woning binnen, die een warme en uitnodigende entree biedt.
Compleet met een toilet en plek voor de jassen, voel je je direct welkom en kun je je gasten met een plezierig gevoel ontvangen!
De ruime woonkamer heeft een verzorgde en frisse uitstraling, met volop ruimte en licht dankzij de vele ramen. De royale indeling maakt diverse opstellingen mogelijk. Zo creëer je eenvoudig een comfortabele loungehoek met een grote tv, terwijl er nog ruim voldoende plek overblijft voor een riante eethoek.
De begane grond beschikt over vloerverwarming, wat zorgt voor een gelijkmatige warmte en een opgeruimde uitstraling zonder radiatoren.
De U-vormige keuken is netjes weggeplaatst, maar behoudt toch een open en uitnodigende uitstraling. Voorzien van een inductiekookplaat met afzuigkap en oven, heb je hier werkelijk alles binnen handbereik. Daarnaast is er volop werkruimte aanwezig.
Vanuit de keuken loop je direct door naar de slaapkamer, die voldoende ruimte biedt voor een groot tweepersoonsbed. De kamer grenst aan een eigen badkamer, voorzien van twee fraaie sierdeuren. De badkamer is uitgerust met een ligbad, een stijlvol badmeubel en een wandcloset. Deze opzet maakt de begane grond ideaal voor gelijkvloers wonen of voor gasten die extra privacy wensen.
Aan de andere kant van de keuken vind je de garage. Deze biedt een fijne plek om bijvoorbeeld je gereedschap en fietsen te stallen of gewoon je auto te plaatsen. Ook kan de ruimte eenvoudig worden ingericht als werkkamer. Je kunt de garage zowel via de binnenkant van het huis betreden als vanaf buiten, dankzij de twee openslaande deuren. Als laatste heb je hier ook de aansluitingen voor het witgoed.
De achtertuin biedt een heerlijke plek om ’s ochtends te genieten van een kop koffie in de zon. Daarnaast is er volop ruimte om te barbecueën of een gezellige verjaardag te vieren. Dankzij de fijne afmetingen van de tuin vergt het onderhoud niet veel van wie geen groene vingers heeft. Heb je wel groene vingers? Dan biedt de tuin volop mogelijkheden om er een prachtige, groene oase van te maken.
Vanuit de trap in de woonkamer kom je op de eerste verdieping, waar je twee ruime (slaap)kamers vindt. Deze kamers zijn groot genoeg om er bijvoorbeeld een spa- of relaxruimte van te maken. Wil je liever de standaardindeling aanhouden? Ook dat is in overleg eenvoudig te bespreken/ te realiseren.
De grote kamer is voorzien van luxe en comfort. Zo is er onder andere een heerlijk whirlpool, een mooie open haard en een airco. Dankzij de grote dakkapel is er extra ruimte en veel natuurlijk licht. Om de hoek heb je een doorgang naar een separaat wandcloset en de badkamer. De badkamer beschikt over een stijlvol badmeubel en een ruime inloopdouche.
De andere ruimte mag ook zeker niet ontbreken: hier vind je namelijk een sauna, een heerlijke plek om te ontspannen, vooral tijdens de koude maanden. Deze verdieping vormt samen een volwaardige wellness-etage waar ultiem ontspannen centraal staat!
Daarnaast is er een compacte zolder, eenvoudig bereikbaar via de vlizotrap. Ideaal voor het opbergen van seizoensspullen of dingen die je zelden nodig hebt. En dankzij de zonnepanelen geniet je van lage energiekosten!
Den Bosch, ofwel ‘s-Hertogenbosch, is de levendige hoofdstad van Noord-Brabant vol charme! Met sfeervolle straatjes en oude gebouwen is het er heerlijk slenteren. Je vindt er gezellige winkels, restaurants en cafés voor de lekkerste hapjes en drankjes. Altijd iets te beleven, van culturele evenementen tot markten. De mooie natuur rondom de stad, inclusief de schilderachtige Binnendieze, maakt het plaatje compleet. Een perfecte plek om te ontspannen en van het buitenleven te genieten!
Daarnaast zijn een peuterspeelzaal, basisschool en kinderdagverblijf in de directe omgeving gemakkelijk te bereiken. Voor dagelijkse boodschappen kun je terecht bij de straat Goulmy en Baarplein of het overdekte winkelcentrum Maaspoort, terwijl de bruisende binnenstad van Den Bosch snel en eenvoudig met de fiets of het openbaar vervoer bereikbaar is. Kortom, een uitstekende ligging waarbij alles wat je nodig hebt binnen handbereik is!
Benieuwd wat er achterblijft? Bekijk de lijst van zaken in het Move-account. Maak snel een afspraak of breng een bezoek aan het open huis. Laat je verrassen door deze unieke woning en grijp je kans!
Verkoper kiest voor: Bieden zonder biedtermijn.
Particularities:
– Gelegen in populaire wijk Maaspoort
– Professioneel, stijlvol gerenoveerd
– Rustige straat, dichtbij voorzieningen
– Nabij historische binnenstad Den Bosch
– Direct toegang tot uitvalswegen
– Parkeerplaats met elektrische laadplek
– Royale woonkamer met veel licht
– 2 airco’s (begane grond en eerste verdieping)
– Vloerverwarming op begane grond
– Rolluiken
– U-vormige moderne keuken
– Smart elektra
– Slaapkamer met aangrenzende badkamer op begane grond
– Garage flexibel als hobbyruimte
– Achtertuin onderhoudsvriendelijk en zonnig
– Eerste verdieping met twee (slaap)kamers
– Luxe 2e badkamer met bubbelbad
– 15 zonnepanelen en een groot dakkapel over de gehele breedte
– Indeling is aanpasbaar te laten maken door aannemer.
Features
Transfer
- asking price
- € 595.000,- k.k.
- Status
- Available
- Permanent habitation
- Yes
Construction
- Type of home
- single-family house
- Design
- existing build
- Construction year
- 1993
Surface & volume
- Living area
- 116 m2
- Other indoor space
- 22
- Building bound outdoor space
- 0
- External storage space
- 0
- Perceel
- 223 m2
- Content
- 489 m3
Layout
- Number of rooms
- 5
- number of bedrooms
- 3
- Amount of floors
- 3
- Living facilities
- Mechanische ventilatie, Rolluiken, TV kabel, Airconditioning, Sauna, Glasvezel kabel, Zonnepanelen
Energy
- Energy label
- a
- Insulation forms
- Dakisolatie, Muurisolatie, Vloerisolatie, HR-glas
- Heating
- Boiler
- Hot water
- Boiler
- Central heating boiler combi boiler
- Yes
- Boiler year of construction
- 2025
- Boiler owned
- Property
Cadastral data
- Surface
- 223 m2
- Ownership situation
- full ownership
Outdoor
- Location
- On a quiet road, Residential area, Sheltered location
- Garden quality
- Catered
Garage
- Services
- Voorzien van verwarming, Voorzien van elektra
- Capacity
- 1
- Number of garages
- 1