Groningensingel 727 Arnhem
- € 235,000 kk
- 60 m2
- 2
€ 275,000 kk
Gelegen in een prachtig groen en rustig deel van Arnhem bevindt zich dit knusse, maar verrassend ruime driekamerappartement. Zodra je het appartement binnenstapt, ervaar je de fijne lichtinval en de prettige sfeer. Vanaf het zonnige balkon kijk je uit over de wijk en geniet je van elke dag! Tegelijkertijd woon je hier bijzonder praktisch, met winkels, supermarkten en ruime parkeergelegenheid op korte afstand.
Het appartement is instapklaar en net gerenoveerd. Zo is er naast het schilder en sauswerk een nieuwe keuken, wandcloset, vloertegels en laminaatvloer gelegd. Lekker toch? Je kunt er zo in!
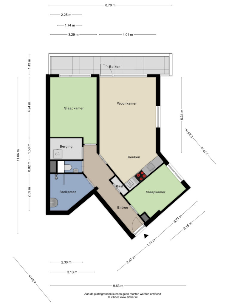
Wat dit appartement bijzonder aantrekkelijk maakt, is de slimme indeling. Het Type G-appartement heeft een royale oppervlakte van 75 m², waardoor je profiteert van een ruime woonkamer, een grote ouderslaapkamer en een comfortabele werk- of tweede slaapkamer. Of je nu starter bent, samenwoont of een klein gezin hebt, dit appartement biedt volop comfort, ruimte en mogelijkheden voor de toekomst.
Je betreedt het appartement via de ingang “Sandenburg”, waar de brievenbussen en het bellentableau zich bevinden. Het appartement ligt op de 1e verdieping en is zowel met de trap als de lift snel bereikbaar. Met slechts drie woningen per verdieping geniet je van veel rust en privacy. Een groot voordeel van wonen op de 1e etage is dat je prettig contact hebt met de “grond”!
Bij binnenkomst in de ruime hal voelt het meteen goed. Er is hier genoeg plek voor een kapstok en schoenenkast. Bezoekers laat je eenvoudig binnen via de intercom.
De lichte en ruime woonkamer biedt voldoende plek voor een comfortabele bank en een gezellige eethoek. Dankzij de royale afmetingen blijft er daarnaast voldoende ruimte over voor een grote eettafel, ideaal voor gezellige diners met vrienden of familie. Aan de voorzijde bevindt zich het op het westen gelegen balkon, waar je heerlijk vanaf vroeg in de middag van de zon kunt genieten.
De nieuwe keuken loopt naadloos over in het eetgedeelte, wat zorgt voor een open en levendige leefruimte. De keuken is tijdloos ontworpen en uitgerust met luxe apparatuur, waaronder een vaatwasser, inductiekookplaat, afzuigkap, koelkast en oven/magnetron. Dankzij de royale werkbladen kook je hier met gemak en bereid je binnen de kortste keren een heerlijke maaltijd.
Het appartement beschikt over twee royale (slaap)kamers. De grootste kamer ligt aan de voorzijde en biedt een prettig uitzicht over de wijk. Er is voldoende ruimte voor een groot bed én een kledingkast of bureau. Het grote raam zorgt voor veel natuurlijk licht, wat de kamer een fijne en lichte uitstraling geeft.
De tweede kamer bevindt zich aan de achterzijde, direct naast de voordeur. Deze veelzijdige ruimte is perfect in te richten als slaapkamer, maar leent zich ook uitstekend als logeerkamer, werkkamer of studeerkamer, afhankelijk van jouw woonwensen.
De badkamer is vanuit de hal bereikbaar en praktisch ingedeeld, waardoor er voldoende ruimte beschikbaar is. Naast de badkamer vind je de deur naar het toilet en een handige berging, die je bijvoorbeeld kunt gebruiken om er een eigen wasruimte van te maken.
Op de begane grond heb je een privéberging waar je bijvoorbeeld je fietsen en seizoensgebonden spullen kunt opbergen.
Met diverse buslijnen sta je binnen 12 minuten in het gezellige stadscentrum van Arnhem. Met de auto ben je in ongeveer 15 minuten in Nijmegen via de A325, en snelwegen zoals de A12 en A15 zijn vlakbij voor een snelle verbinding naar Rotterdam, Utrecht of Emmerich. Voor treinreizigers zijn Arnhem Centraal en Arnhem Zuid goed bereikbaar. Het centrum van Arnhem biedt een breed scala aan winkels, gezellige terrassen en restaurants.
Stap je de deur uit, dan sta je direct in het Immerloopark. Dit park, met zijn glooiende landschappen en variatie in flora en fauna, is een perfecte plek om te wandelen, fietsen of te genieten van de 18-holes discgolfbaan. Ook in de omgeving zijn er tal van mogelijkheden om te wandelen en fietsen, met de dijk en uiterwaarden van de Rijn vlakbij.
Voorzieningen zoals een Albert Heijn, sportschool Basic-Fit, basisscholen en middelbare scholen liggen allemaal in de buurt. Winkelcentrum Kronenburg, op korte afstand, biedt diverse winkels, horeca en supermarkten.
Bij de aankoop van dit appartement koop je een appartementsrecht. Dat betekent dat je exclusief eigenaar bent van je appartement en gezamenlijk eigenaar van het gebouw en de gemeenschappelijke ruimtes. Samen met de andere eigenaren draag je bij aan de kosten voor onderhoud, schoonmaak en verzekering van het complex. De VvE-bijdrage bedraagt € 197,37 (appartement) per maand en de berging bedraagt € 5,56 per maand (Conform begroting 2025).
Ben je benieuwd hoe je jouw nieuwe woning kunt inrichten en welke mogelijkheden er zijn? Plan dan snel een bezichtiging! Dat kan eenvoudig rechtstreeks via de makelaar op 06-31947701.
Wil je graag de documenten van de woning ontvangen? Laat het ons weten, dan voegen wij je toe aan het Move-account van de woning.
Particularities:
• Huismeester aanwezig
• Mooi uitzicht over de wijk
• Dicht bij alle voorzieningen
• Maandelijkse VvE-bijdrage: € 197,37 (appartement)
• Maandelijkse voorschot stookkosten: € 105,06
• Appartement met praktische indeling
• Berging aanwezig
• Projectnotaris van toepassing
• Instapklaar
• Recent gerenoveerd
Kortom, een ideale woning voor wie praktisch en comfortabel wil wonen!