Palladiostraat 95 Rotterdam
- € 1.545,- p/m
- 85 m2
- 3
€ 1.430,- p/m
Per 1december 2025 beschikbaar!
Leuke 3 kamer maisonnette in de groene wijk Prins-Alexander in Rotterdam!
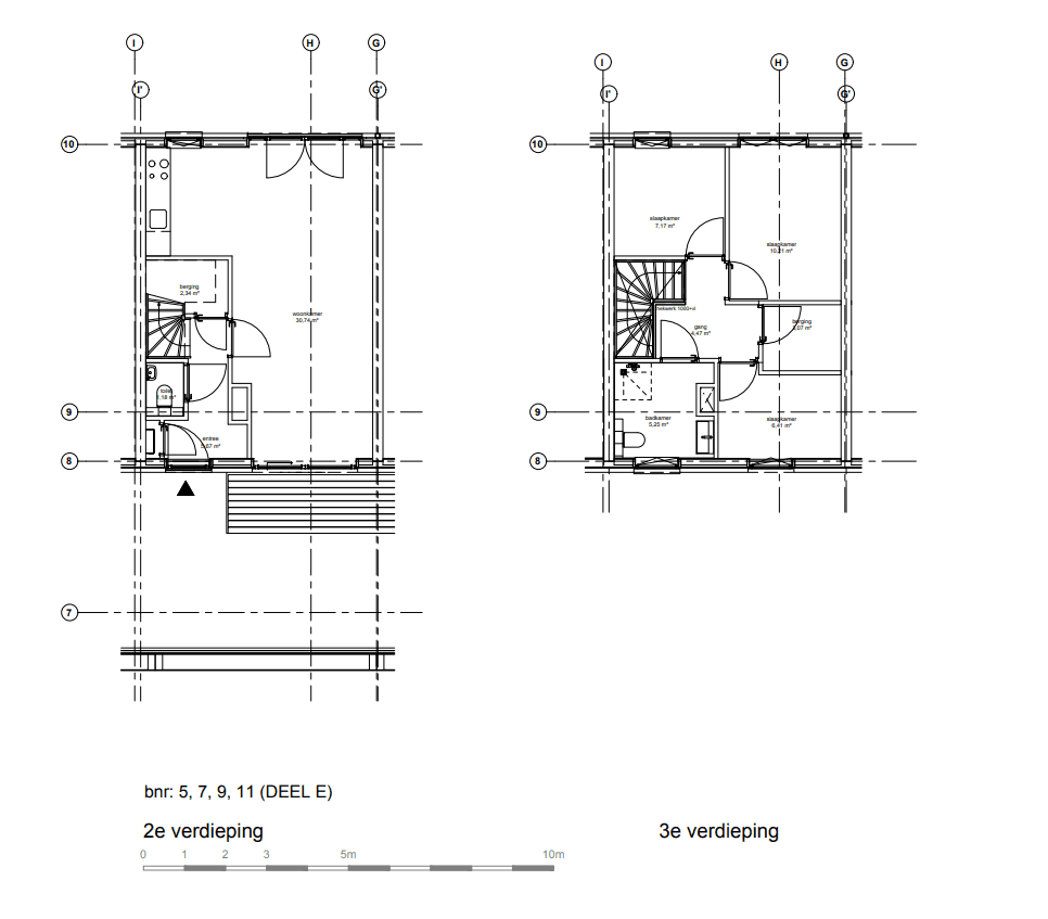
De woning is 84 m2 en heeft twee verdiepingen. Op de begane grond kom je binnen via de hal met toegang tot het separaat toilet en de woonkamer met open keuken, voorzien van inbouwapparatuur. Via de trap kom je op de eerste verdieping waar zich drie goed formaat slaapkamers bevinden. De badkamer met inloopdouche, wastafel en tweede toilet. Daarnaast is er een aparte berging met de plek voor de wasmachine en droger.
Energielabel A++. Mogelijkheid om een parkeerplaats erbij te huren.
Je woont dicht bij de rust en natuur van het Kralingse Bos en de Kralingse Plas en vlak bij het centrum van Rotterdam. Lopend ben je zo bij winkelcentrum Het Lage Land en metrostation Prinsenlaan. Pak je de fiets, dan ben je binnen de kortste keren bij winkelcentrum Prinsenland en woonmall Alexandrium. Ook de Erasmus Universiteit en Hogeschool Rotterdam liggen op 5 minuten fietsen. En ga je verder weg? Met de auto ben je vlug op de snelwegen A16 en A20.
Huurprijzen:
Huurprijs: € 1.430,00
Servicekosten: € 60,00 p/m
Parkeerplaats: € 57,00 buiten of € 77,00 overdekt
Waarborgsom: Maximaal 2 maanden.
De eerste huurverhoging volgt per 1-7-2026.
De woning is per 1 december 2025 beschikbaar. De minimale huurperiode is 12 maanden.
* Getoonde foto’s zijn van een soortgelijke woning.
Questions about this property?
Voor vragen over deze woning kun je contact opnemen met ons kantoor in Amsterdam.
Interested in this property?
Schrijf je kosteloos en vrijblijvend in op onze website NMGwonen.nl/huur. Zoek vervolgens de woning op en klik in het paarse vlak op de knop [INLOGGEN]: je geeft hiermee aan dat je interesse hebt in de woning.
Om in aanmerking te komen voor deze woning dient het bruto maandinkomen minimaal 3,5x de huurprijs per maand te bedragen. Het inkomen van een eventuele partner mag volledig meegerekend worden. Zelfstandigen dienen minimaal 2 jaarcijfers te kunnen aanleveren. Er zal een inkomenstoets plaatsvinden. Tevens voeren wij een creditcheck uit. Voor alle toewijzingscriteria verwijzen wij je naar onze website.
Indien je je inschrijft via onze website NMGwonen, zullen wij je op basis van de verstrekte informatie automatisch per e-mail informeren over de woningen die beschikbaar komen en voldoen aan jouw woonwensen.
All information has been compiled with the greatest possible care. Unfortunately, we cannot always prevent the information from deviating slightly from reality. In some cases photos of a similar house or apartment are used and serve as an impression. No rights can be derived from the texts, plans, photos and dimensions.