Bredewater 17U Zoetermeer
- € 986,- p/m
- 48 m2
- 2
€ 967,- p/m
Beschikbaar per 15-10-2025 Leuke studio in de wijk Meerzicht.
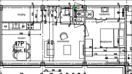
De woning is 45 m2 en is voorzien van Woonkamer met open keuken en één slaapkamer. De keuken is voorzien van inbouwapparatuur. Badkamer met toilet, inloopdouche en wastafelmeubel en er is een aparte berging aanwezig in de woning.
Huurprijs: € 966,23 p.m.
Service costs: € 60.00 pm
Waarborgsom: maximaal 2 maanden
De eerste huurverhoging volgt per 1-7-2026.
* Getoonde foto’s zijn van een soortgelijke woning.
The house is available immediately. The minimum rental period is 12 months.
Interested in this property?
Schrijf je kosteloos en vrijblijvend in op onze website NMGwonen.nl/huur. Zoek vervolgens de woning op en klik in het paarse vlak op de knop [INLOGGEN]: je geeft hiermee aan dat u interesse hebt in de woning.
Minimale inkomen € 36.132,- per jaar
Maximale inkomen 1 persoons huishouden per jaar € 49.669,00
Maximale inkomen 2 persoons huishouden per jaar € € 54.847,00
Indien je bent geselecteerd voor de woning én de documenten zijn akkoord, dien je zelf een huisvestigingsvergunning aan te vragen bij Gemeente Zoetermeer. Wij zullen je dan voorzien van een verhuurders bijlage die nodig is voor de aanvraag.
Om in aanmerking te komen voor deze woning dient het bruto maandinkomen minimaal 3,5x de huurprijs per maand te bedragen. Het inkomen van een eventuele partner mag volledig meegerekend worden. Zelfstandigen dienen minimaal 2 jaarcijfers te kunnen aanleveren. Er zal een inkomenstoets plaatsvinden. Tevens voeren wij een creditcheck uit. Voor alle toewijzingscriteria en het selectiebeleid verwijzen wij je naar onze website.
Indien je je inschrijft via onze website NMGwonen, zullen wij je op basis van de verstrekte informatie automatisch per e-mail informeren over de woningen die beschikbaar komen en voldoen aan jouw woonwensen.
All information has been compiled with the greatest possible care. Unfortunately, we cannot always prevent the information from deviating slightly from reality. In some cases photos of a similar house or apartment are used and serve as an impression. No rights can be derived from the texts, plans, photos and dimensions.