ks. Ibisplantsoen 52 Amsterdam
- € 1.900,- p/m
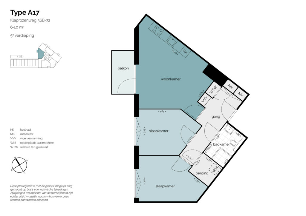
- 63 m2
- 2
€ 1.185,- p/m
Ruim en gezellig appartement per 1 januari 2026 beschikbaar!
Ben jij op zoek naar een fijne comfortabele woonplek in Amsterdam-Noord? Dan is dit leuke appartement in het gloednieuwe complex Ivy Amsterdam aan de Klaprozenweg/Heggerankweg en het Schooltuinpad echt iets voor jou!
Perfecte locatie!
Ivy Amsterdam ligt centraal in Amsterdam-Noord. Je bent zo in de stad met de pont of het OV naar Centraal Station. Bovendien ligt het bruisende NDSM-terrein op fietsafstand, en zit je in no-time op de A10.
Het appartement is ideaal voor iemand die op zoek is naar een ruimte en een moderne woning. Dankzij de grote ramen geniet je van volop natuurlijk licht.
De woning is helemaal instapklaar! De keuken en badkamer zijn volledig ingericht, dus je kunt er meteen in. De keuken is uitgerust met een inductie kookplaat, afzuigkap, een ingebouwde koelkast met vriesvak en een geïntegreerde vaatwasser – superhandig! Er zijn twee slaapkamers voorzien van grote ramen. De badkamer is voorzien van douche, wastafel en toilet. Ook is er een aparte ruime berging in de woning en een aparte plek voor de wasmachine.
Praktische informatie:
– Huurprijs: € 1.184,82 per maand
– Servicekosten: € 100,- per maand
– Vloeropslag: € 11,81 per maand
– Waarborgsom: maximaal 2 maanden
– De eerste huurverhoging volgt per 1-7-2026.
– De woning is per 1 januari 2026 beschikbaar. De minimale huurperiode is 12 maanden.
* Getoonde foto’s zijn van een soortgelijke woning.
Minimale inkomen € 49.762,44 per jaar
Maximale inkomen 1 persoons huishouden per jaar € 81.633,00
Maximale inkomen 2 persoons huishouden per jaar € 89.821,00
Indien je bent geselecteerd voor de woning én de documenten zijn akkoord, dien je zelf een huisvestigingsvergunning aan te vragen bij Gemeente Amsterdam. Wij zullen je dan voorzien van een verhuurders bijlage die nodig is voor de aanvraag.
Vragen over deze woning?
Voor vragen over deze woning kun je contact opnemen met ons kantoor in Amsterdam.
Interesse in deze woning?
Schrijf je kosteloos en vrijblijvend in op onze website NMGwonen.nl/huur. Zoek vervolgens de woning op en klik in het paarse vlak op de knop [INLOGGEN]: je geeft hiermee aan dat je interesse hebt in de woning.
Om in aanmerking te komen voor deze woning dient het bruto maandinkomen minimaal 3,5x de huurprijs per maand te bedragen. Het inkomen van een eventuele partner mag voor de helft meegerekend worden. Zelfstandigen dienen minimaal 2 jaarcijfers te kunnen aanleveren. Er zal een inkomenstoets plaatsvinden. Tevens voeren wij een creditcheck uit. Voor alle toewijzingscriteria en het selectiebeleid verwijzen wij je naar onze website.
Indien je je inschrijft via onze website NMGwonen, zullen wij je op basis van de verstrekte informatie automatisch per e-mail informeren over de woningen die beschikbaar komen en voldoen aan jouw woonwensen.
Alle informatie is met de grootst mogelijke zorg samengesteld. Helaas kunnen wij niet altijd voorkomen dat de informatie enigszins afwijkt van de werkelijkheid. In sommige gevallen worden foto’s gebruikt van een soortgelijke woning of appartement en dienen als impressie. Aan de teksten, plattegronden, foto’s en maatvoeringen kunnen geen rechten worden ontleend.
Mogen wij jouw woning verkopen?
Bekijk onze aanpak om jouw
woning succesvol te verkopen!